""
Who
What
When/Where
Why
""
Who
What
When/Where
Why
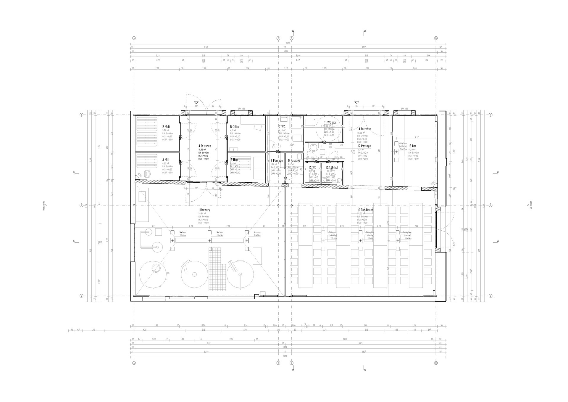
Haggenmacher Brewery
Conversion of a warehouse into a brewery with a tap room. Built in 2025.
Project together with Elvis Storke. All photos by Raphael Klucker.
↑
Back to Top